Ngôn ngữ
English English Russian Tiếng Việt
Chức vụ:
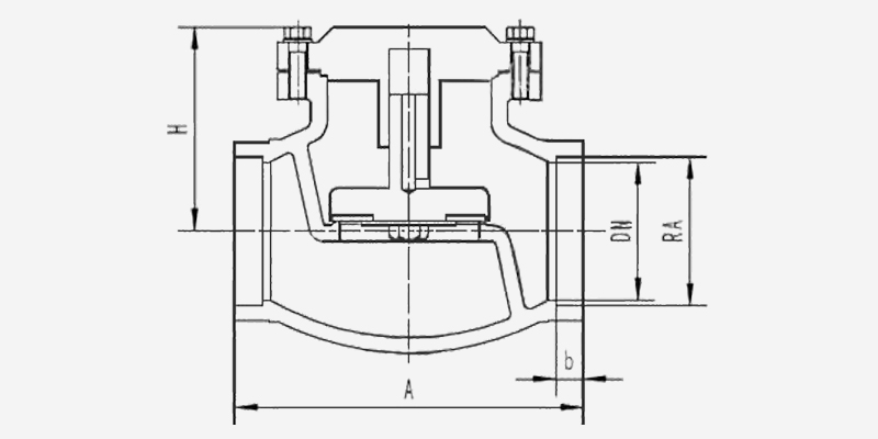
Van kiểm tra thép rèn.
Van kiểm tra thép rèn.
Van kiểm tra thép rèn.
Van kiểm tra thép rèn.

Van kiểm tra thép rèn.

Cơ thể: Thép rèn
Nhiệt độ: -29℃-425℃
Phương tiện: Nước, dầu, khí đốt, v.v
Kết nối: Mông được hàn
Operated: Máy tự động
GIỚI THIỆU
Dữ liệu
Có liên quan
CUỘC ĐIỀU TRA
GIỚI THIỆU
Kiểm tra tiêu chuẩn
Kiểm tra thân van: 1,5 lần áp suất làm việc với nước. Kiểm tra này được thực hiện sau khi lắp ráp van và với đĩa ở vị trí mở nửa, được gọi là kiểm tra hydro thân van.
Kiểm tra ghế: 1,1 lần áp suất làm việc với nước.
Kiểm tra chức năng/hoạt động: Khi kiểm tra cuối cùng, mỗi van và actuator của nó (tay quay điều khiển dòng chảy/Bộ truyền động/Ga khí), được thực hiện một bài kiểm tra hoạt động đầy đủ (Mở/Đóng). Kiểm tra này được thực hiện không áp suất và ở nhiệt độ môi trường để đảm bảo hoạt động chính xác của bộ van/actuator với phụ kiện như van solenoid, công tắc giới hạn, bộ lọc khí v.v.
Kiểm tra đặc biệt: Theo yêu cầu, bất kỳ kiểm tra nào khác cũng có thể được thực hiện theo hướng dẫn đặc biệt của khách hàng.


Ứng dụng
1. Nhà máy xử lý nước
2. Nhà máy bia
3. Tháp khoan
4. Điều hòa nhiệt độ và không khí
5. Ngành giấy
6. Công nghiệp hóa chất
7. Nhà máy khí
8. Băng tải khí nén
9. Ngành công nghiệp đường
10. Nhà máy xử lý nước thải
11. Luân chuyển nước làm mát
12. Khí nén

 
Dữ liệu
Cuộc điều tra
Nếu bạn muốn liên hệ với chúng tôi để biết thêm thông tin về các sản phẩm của chúng tôi, vui lòng điền vào mẫu dưới đây, xin cảm ơn.If you would like to contact us for more information about our products ,please fill out the form below,thank you.
*Tên
*E-mail
Điện thoại
Quốc gia
Kiểu
Kích cỡ
Nguyên vật liệu
Áp lực
Trung bình
nóng nảy
*Tin nhắn
Nhanh tư vấn
Tên:
E-mail:
Điện thoại:
Kiểu:
Kích cỡ:
Tin nhắn:
Copyright: 1972-2020 Yuming Valve Group Co,Ltd. All rights reserved.